Nunspeet – Oenenburgweg 264
Wat een leefruimte en comfort biedt deze FRAAI GERENOVEERDE EN UITGEBOUWDE MIDDENWONING met bijkeuken, berging en veranda…
De recent aangebrachte luxe keukenopstelling met inbouwapparatuur, het fraaie sanitair in toilet en badkamer en de ruime berging met aangebouwde veranda voorzien van zadelkap
zorgen voor een comfortabel huis waar klusplannen achterwege kunnen blijven.
Ook de ligging met scholen, kerken, sportvoorzieningen én het fraaie Edzard Koningpark (met speelgelegenheid en hertenkamp) in de directe omgeving zorgt voor prettig wonen.
Behalve het toilet is de begane grondvloer van vloerverwarming voorzien.
Het buitenschilderwerk is in 2025 uitgevoerd en vrijwel alle ramen zijn van HR++ beglazing voorzien. In 2021 is de keuken in hoekopstelling gerealiseerd en van Siemens inbouwapparatuur voorzien.
De 8 zonnepanelen zijn in 2020 aangebracht en dit jaar is tot 12 oktober jl. 2.430 kWh opgewekt.
Verwarming via een gasgestookte installatie met behulp van een Nefit Trendline HRC CW4 II combi-ketel welke in 2020 is geïnstalleerd.
Dat dit bepaald geen doorsnee middenwoning is laten we je graag zien.
Vooruitlopend daarop alvast een indruk van de indeling:
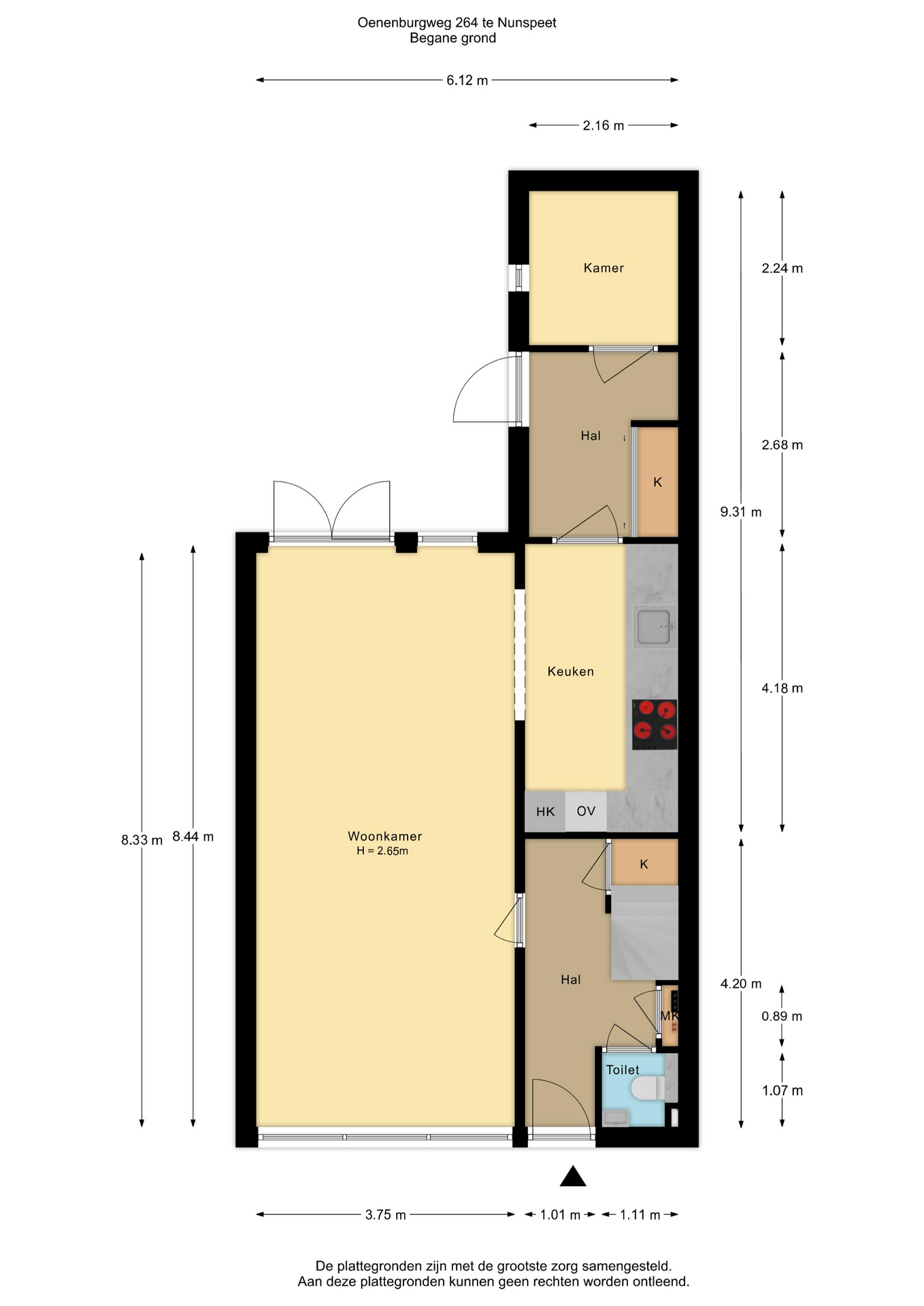
Via de hal met gerenoveerd toilet en meterkast kom je in de ruime woonkamer met veel lichtinval en dubbele terrasdeuren aan achterzijde. Door het verwijderen van een tussenwand biedt de half-open keuken met voormelde keukenopstelling veel ruimte.
Vanuit de keuken bereik je de achter-entree met schuifkasten. Vanuit deze ruimte heb je toegang tot de achtertuin én tot de achtergelegen bijkeuken/opslagruimte. Deze ruimte kan uitstekend dienst doen als hobby-/werkkamer.
Op de eerste etage treft je naast de overloop drie flinke slaapkamers aan. De hoofdslaapkamer is van een schuifkastenwand voorzien. En dan de badkamer: gerenoveerd naar de huidige
normen in een fraaie kleurstelling met een doucheruimte, wastafel met badkamermeubel, tweede toilet (wandcloset) en design-radiator.
De tweede etage welke via een vaste trap bereikbaar is zal je aangenaam verrassen. Door de aanwezigheid van een dakkapel en een groot tuimelraam beschik je hier over een ruime zolderetage waar 1 of meer (slaap)kamers te realiseren zijn.
RIANTE, UITGEBOUWDE EENGEZINSWONING MET HOOG VOORZIENINGENNIVEAU OP PRETTIGE WOONLOCATIE.
Plattegronden woning







